Apartament nou cu 3 camere in Prima Arena

129,710€
AV615 ID Proprietate
66 m2 Suprafață
2
2

Descriere

D`Art Imob va ofera un apartament nou, cu 3 camere de vanzare situat in cartierul Prima Arena din Oradea.

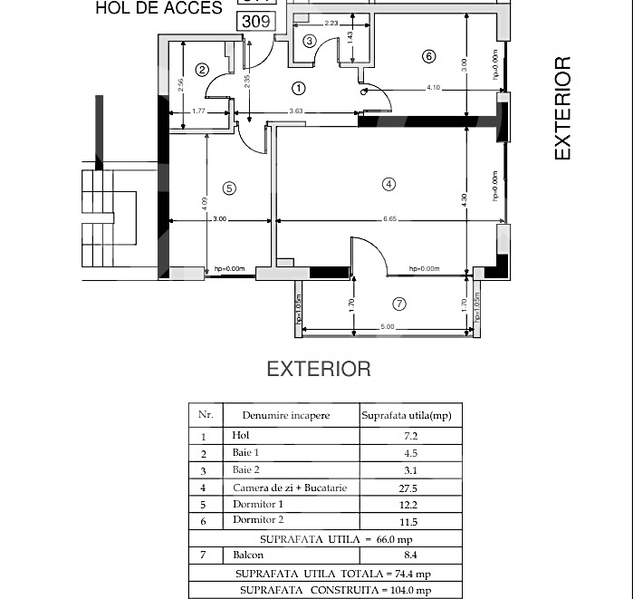
Locuinta are dubla orientare si o suprafata utila de 66 mp si este amplasat la etajul 1 unui bloc nou de 8 etaje, construit in 2023. Apartamentul este decomandat si se compune din hol de acces, living cu bucatarie open-space, 2 dormitoare, 2 bai, balcon deschis (8 mp).

Aceasta este dotata cu: parchet laminat, gresie/faianta, ferestre termopan, usi de interior din MDF, video interfon si usa de inalta siguranta. Apartamentul dispune de sistem de incalzire in pardoseala, realizata prin reteaua de termoficare a orasului, cu contorizare individuala.

Blocul din care face parte apartamentul este dotat cu sistem de supraveghere video.

In proximitatea acestuia se gasesc magazine, Auchan, Jumbo, ERA Shopping Park, Sala Polivalenta, Univeristatea din Oradea,  statii ale mijloacelor de transport in comun, zone verzi.

Pretul pentru acest apartament nou cu 3 camere din cartierul Prima Arena este de 129710 euro.

Aditional se poate achizitiona un loc de parcare la exterior, la pretul de 7200 euro + TVA.

Pentru detalii suplimentare, informatii si vizite, ne puteti contacta la:

Nr. Tel.: 0727721842 – George Stefanco

e-mail: george@dartimob.ro

Sau la sectiunea contact din site-ul nostru: www.dartimob.ro

De asemenea, ofertele noastre le puteti viziona si pe Facebook, accesand pagina D’Art Imob

~~~~~~~~~~~~~~~~~~~~~~~~~~~~~~~~~~~~~~~~~~~~~~~~~~~~~~~~~~~~~~~~~~~~~~~~~~~~~~~~~~~~~~~~~~~

D`Art Imob offers you a new, 3-room apartment for sale located in the Prima Arena district of Oradea.

The house has double orientation and a usable area of ​​66 sqm and is located on the 1st floor of a new 8-storey building, built in 2023. The apartment is detached and consists of an entrance hall, living room with open-space kitchen, 2 bedrooms, 2 bathrooms , open balcony (8 sqm).

It is equipped with: laminated parquet, floor tiles, double glazed windows, MDF interior doors, video intercom and high security door. The apartment has an underfloor heating system, made through the city’s heating network, with individual metering.

The block of which the apartment is a part is equipped with a video surveillance system.

In its vicinity there are shops, Auchan, Jumbo, ERA Shopping Park, Sala Polyvalenta, the University of Oradea, public transport stations, green areas.

The price for this new 3-room apartment in the Prima Arena neighborhood is 129,710 euros.

In addition, an outdoor parking space can be purchased at the price of 7,200 euros + VAT.

For additional details, information and visits, you can contact us at:

No. Tel.: 0727721842 – George Stefanco

e-mail: george@dartimob.ro

Or at the contact section of our website: www.dartimob.ro

You can also view our offers on Facebook by accessing the D’Art Imob page

Adresa

Prezentare generală

  • ID Proprietate AV615
  • Preț 129,710€
  • Camere 3
  • Dormitoare 2
  • Număr băi 2
  • Anul construcției 2023
  • Suprafață 66 m2
  • Etichetă , , ,
  • Compartimentare Decomandat
  • Etaj Etaj 1
  • Particularități balcon, dormitor matrimonial
  • Infrastructură lift, spatiu de joaca, electricitate, canalizare, apa curenta
  • Comodități aer conditionat
  • Siguranță supraveghere 24/7, supraveghere video, videointerfon

Contact

George Ștefanco

Agent proprietate

+40 727 721 842
Alte proprietăți
Please enter your Name!
Please enter your Phone!
Please enter your valid Email!
Please enter your Message!